今日,四川首台大型巴文化情景史诗剧——《梦回巴国》,终于向观众揭开神秘面纱。
历时4年之久,总导演哈文、副总导演沈晨、视觉艺术总监沙晓岚及其团队【英国上市公司365】,在达州宣汉的巴山大峡谷“梦回巴国”剧场内再现传奇。
此次《梦回巴国》是哈文导演与【英国上市公司365】继央视春晚后的四度合作,同时也是沈晨导演继奥运会开闭幕式、大型“汉史”题材演艺项目《汉颂》之后与【英国上市公司365】的再度携手,超强“国家队”梦幻阵容,加上多次项目的默契配合,都成为《梦回巴国》的品质保证!
【英国上市公司365】作为舞美视觉空间创意承制,通过水帘、威亚、灯光、投影、多媒体制作、舞美、服化道等一系列舞台创意技术手段,运用极致的视觉表达、高标准的美学追求打造全方位沉浸式观演空间,让尘封千年的巴国于舞台之上破土重现!
一起领略巴文化奥秘▼

最鼎盛的巴文明再现
【英国上市公司365】主创团队基于古老巴国文明的故事背景,研读《山海经》、《左传》、《世本》、《华阳国志·巴志》、《水经注》和《后汉书·南蛮西南夷列传》等记载巴国文明的早期文献著作。同时以宣汉地区巴国遗址现存可考的文物、符号等文化元素作为创作背书,经过全新的艺术构思及解构,将文化历史融入演出创意及舞台技术之中。
严谨繁复的前期准备,只为最大限度还原巴国文化,让巴国重现,不仅是舞美设计、投影及多媒体影像,小到服化道设计,演出中精巧考究的细节设计,处处体现匠心。
观众在剧场内不仅能欣赏到一台精彩演出,更能在走出剧场后,将剧中的人、事、物对照在现今真实的自然风景和巴国遗存上,引发无限遐想,形成“真亦是幻,幻亦是真”的心灵感悟,是【英国上市公司365】主创团队对宣汉这片美丽神奇的大地由衷的赞叹和喜爱!
最沉浸的演出体验
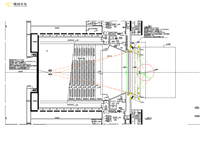
同时,【英国上市公司365】主创团队在视觉艺术总监沙晓岚的创意引领下,通过丰富的世界顶尖的设计及舞台艺术手段,为观众呈现浪漫瑰丽、恢弘壮美的巴文明史诗。舞美设计方面,舞美总设计郭昕在导演打破“传统舞台空间”的创意方向下,大胆突破,提出多块升降舞台设计,通过升降舞台的变化组合,既可共同营造磅礴浩大的场面;又可裂变、拆分、组合,形成数十种空间形象,完成吊桥攻伐、圣坛祭祀、攀岩渔猎等戏剧场景,极大延伸舞台表现空间,最终诞生全国最高举架、最大跨度、最广面积、最多层次的全新室内剧场类表演空间。同时为突破建筑空间的纵深局限,创造性设计可升降的观众座椅,完全打破舞台与观众的隔阂,实现观演关系的多维度沉降,让观众沉浸在舞美、华美、典雅、端庄的质感同时,又能瞬间实现情绪与试听切换,投入狂野的原始风情。
《梦回巴国》这样一台文化与旅游紧密结合的艺术作品,集光影、歌、舞、特技、影像等多种模式于一体,不仅是首台巴文化大型剧目,更是对巴人精神的一次艺术凝练和现代弘扬。
灯光、投影、多媒体等创意设计极大丰富了演出效果,在营造出神秘壮美的巴国盛景同时,亦突出了人物细节刻画,宛若浓墨重彩的画卷,最大程度地让观众沉浸在剧情氛围中,去感受前所未有的震撼与梦幻。
河神怒吼下的“五姓争王”、漫天风雪里的举国迁徙、丛林迷障中的艰难前行、圣坛上的虔诚祈福、悬崖绝壁间的彼岸花开......灯光、投影、多媒体等创意手段浪漫描绘,不仅引领观众层层揭开古老巴国的神秘面纱,一睹其数千年前的真容,更让观众了解历史,读懂巴国。
同时,水帘、威亚等一系列舞台创意技术手段,让舞台空间无限延伸,配合考究的服化道设计、沉浸式音响布局,打破了舞台的镜像框架局限,让整体视听设计充满剧场空间,真正做到有限空间的无限沉浸式体验。
《梦回巴国》全新的设计使其突破了传统剧场的观演模式,“从上到下”的观演关系,将使观众享受真实的“穿越感”:
从身到心真正的去追寻那已消失千年的巴国文明,领略那尘封在时光尽头里的尊贵古巴国文化,这是该剧最为独特的亮点,也是全国首创、领先于世界水准的大型空间艺术设计。相信《梦回巴国》将以文化的力量为巴山大峡谷景区注入灵魂,打造成巴蜀文化旅游走廊的文化精品。
您可能对其他新闻感兴趣